Nos preocupa tu privacidad En pisos.com utilizamos cookies propias y de terceros para dar un servicio satisfactorio mediante cookies técnicas, de personalización y para fines analíticos. pulsa AQUÍ para más información. Puedes aceptar todas las cookis pulsando el botón "aceptar" o configurarlas o rechazar su uso pulsando
Aceptar Rechazar todas Configurar
1/22

Inmueble singular en venta en Centro Histórico-La Merced

Centro Histórico-La Merced (Centro. Málaga Capital)

1.200.000€
Ref.011007
  • m2
    282
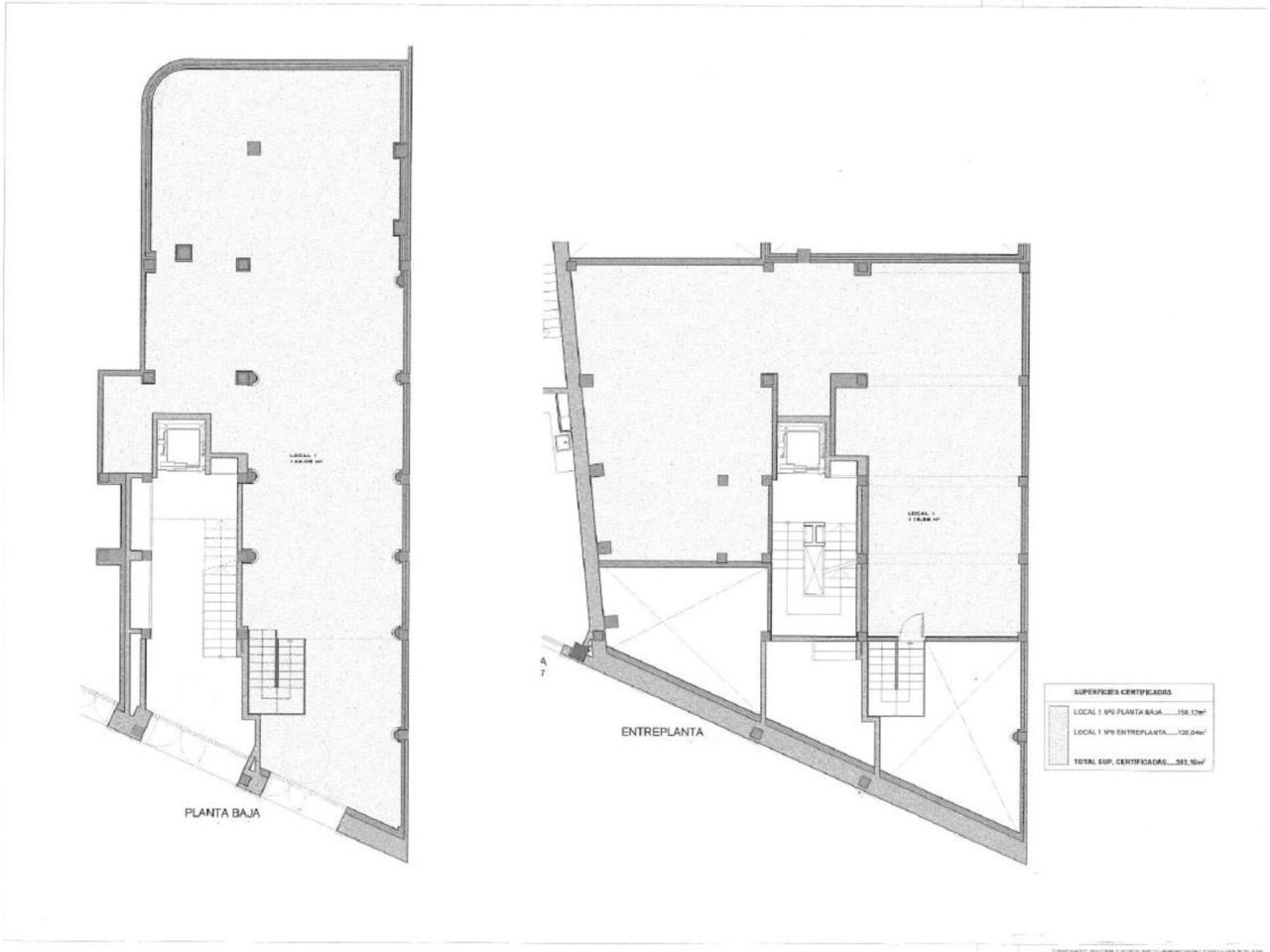
Este local muy especial por su situación y el edificio que lo alberga, en Málaga Capital se encuentra en una ubicación privilegiada en el Centro Histórico. Con una superficie total de 282 m² (entre planta baja y ent...
Leer más
  • Planta
    63
  • Superficie solar
    160 m2
  • Superficie útil
    250 m2
  • Cert. energética
    548
    Ver etiqueta energética
 CONTACTAR
  Compartir

Solicitar información del inmueble

Enviar
Llámanos ahora
+34 952315045